System and method for producing cement clinker by oxy-fuel combustion
(22) 10.05.2021
(43) 17.11.2022
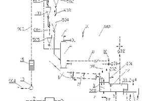
(57) A system and method for producing cement clinker by oxy-fuel combustion circulation preheating, the system comprising a preheater, a decomposing furnace, a smoke chamber, a rotary kiln and a cooling machine; the cooling machine comprises a first cooling area and a second cooling area; the first cooling area comprises a first cooling subarea and a second cooling subarea; mixed gas of high-concentration pure oxygen and carbon dioxide flue gas is introduced into an inlet of the first cooling subarea, and an outlet of the first cooling subarea communicates with an air inlet of the rotary kiln; first cooling gas discharged from the outlet of the first cooling subarea serves as secondary air to enter the air inlet of the rotary kiln, and carbon dioxide flue gas is introduced into an inlet of the second cooling subarea; an outlet of the second cooling subarea communicates with the air inlet of the rotary kiln by means of a first pipe; and second cooling gas discharged from the outlet of the second cooling subarea is controlled to serve as quartic air to enter the air inlet of the rotary kiln. Therefore, the concentration of O2 in the mixed gas within the rotary kiln is adjusted, and then the flame temperature of oxy-fuel combustion of the rotary kiln is controlled.
(71) Tianjin Cement Industry Design & Research Institute Co., Ltd., Tianjin 300400 (CN)
