This is a question to which all countries that have so far been exporting their waste to China will have find a new answer. This applies especially to the USA, Japan and the EU as the leading waste...
Sika is expanding its presence in Africa and opening a new facility in the Angolan capital, Luanda. In addition to the production of concrete admixtures in an existing factory, mortar products – one...
Since 01.10.2017, Aumund Fördertechnik GmbH in Rheinberg has had a new Managing Director, Jens Müller (54), who is responsible for finance, controlling, IT, HR, general admin, purchasing and...
On 10.11.2017, HeidelbergCement announced that it has sold 50 % of the voting rights in its Georgian business to Cement Invest, an investment company jointly managed and owned by the Georgian...
Zhiping Song, Chairman of China National Building Materials (CNBM), has been appointed the new President of the World Cement Association. This is the first time a representative from a Chinese...
The new Costa Rican grinding plant for Cementos Fortaleza, which was recently announced by owner Elementia S.A.B. de C.V., will feature Gebr. Pfeiffer’s new ready2grind modular system. This US$ 17.5...
FLSmidth has been awarded an order from Cooperativa Boliviana de Cemento, Industrias y Servicios (Coboce Ltda) in Bolivia, for engineering, procurement and supply of equipment for a new OK 43-4...
When filling, storing or distributing industrial paper sacks, poor handling practices can increase the risk of damage to paper sack materials or filled paper sacks. The handling recommendations for...
Loesche has won an order from Penna Cement Industries Limited, India. The vertical roller mill is to be used at the cement plant in Boyareddypalli (in the state of Andhra Pradesh), around 200 km north...
In May 2017 Aumund Fördertechnik GmbH won the order for three drag chain conveyors with capacities from 7.5 t/h to 200 t/h for discharge of limestone, gypsum and pozzolan for the new cement plant in...
Geocycle India is contributing to the Group’s sustainability strategy – the 2030 plan – by turning trash into fuel. The initiative to directly source biomass from farmers in India helps secure...
Loesche has managed to gain a new customer in Nepal, namely the cement division of the Chaudhary Group (CG Group) based in Kathmandu. The subsidiary of the conglomerate placed an order for a vertical...
Construction volume in the Euroconstruct area has grown by an estimated 3.5 % in 2017. The strongest stimuli once again came from residential construction. Developments in 2017 are remarkable for two...
HeidelbergCement and EMBL (European Molecular Biology Laboratory) have signed an agreement on a three-year collaboration to exchange scientific and technical knowledge. A new Memorandum of...
As part of a benchmarking study by the renowned RWTH Aachen University, thyssenkrupp Industrial Solutions and indurad have been awarded the “Data-based Services 2017” award. In 2017, the study focused...
Cherat Packaging Limited, one of the largest producers and suppliers of packaging to the cement industry in Pakistan with a capacity of 600 million bags annually, has made over half a billion cement...
Fagus-GreCon has supplemented its portfolio of detectors for preventive fire protection with a new thermo detector that monitors surface temperatures more flexibly than ever. Three contact sensors...
GCP Applied Technologies Inc., a leading global provider of construction products technologies, has launched two new cement additives, Opteva HE quality improvers and Tavero VM grinding aids, to...
The new Sandvik CS550 cone crusher is a powerful secondary stage crusher for 700–750-t applications. In addition to flexibility and sheer tonnage, it offers advanced automation and maintenance...
As bulk handling equipment suppliers continue to make use of new and evolving technologies to develop “smarter” conveyor systems, Martin Engineering has introduced data tracking with QR codes on its...
After successfully supplying the gypsum calcining industry with Rotary Drum Coolers for more than two decades, Claudius Peters has developed the next generation of Rotary Drum Coolers with many new...
Present production systems or production processes always go along with structures and automation concepts which are more sophisticated and more complex. Malfunctions or even failures of compressed...
With the Beumer bag tester, Beumer Group has developed a testing device which is easy to transport and enables users to exactly determine the venting capacity of any type of valve bag – including all...
Schenck Process has announced the latest extension to its Multidos weighfeeder range. Multidos VDP-C is a new range of medium-sized and compact apron weighfeeders mainly suitable for raw material...
The new Beumer bag-in-bag system quickly and reliably packs filled paper bags individually or in groups with a weather-resistant plastic film. This protects the contents against moisture, dust,...
From 05.12.-08.12.2017, the National Council for Cement and Building Materials (NCB) had once again invited to its biennially organized NCB International Seminar on Cement & Building Materials in New...
Dirk Lechtenberg and his consulting firm MVW Lechtenberg & Partner have been serving the cement industry in connection with alternative fuels for many years now. We spoke with him about the present...
Every cement expert is aware of the difficulties the sector is experiencing and of the influence of the use of alternative fuels when it comes to reducing costs. With these premises, CPV Monjos...
Vecoplan AG has been developing suitable technologies for preparing and handling materials with RDF quality. The company provides machines and equipment for use in the recycling of wood as well as...
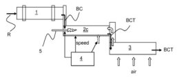
If you want efficient plants for turning municipal, commercial and industrial waste into fuel, you first have to define the end product. Especially in the single-stage production of fluidised bed...
Erdwich Zerkleinerungssysteme GmbH supplies systems that automatically take representative samples of substitute fuels and prepare these for laboratory analysis.
The status quo of co-incineration in Germany and the production of quality assured solid recovered fuels (SRF) is as well described as the normative requirements for the production of SRF, which...
Nesher Cement has made substantial progress with its alternative fuels program, reaching a fuel substitution level of 20 %, using several types of alternative fuels. Nesher plans on increasing the use...
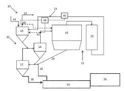
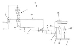
With the world facing new challenges in handling growing volumes of post-consumer waste, linking waste- and raw materials-preparation systems offers a viable solution – and big economic benefits.
(22) 25.08.2015(43) 28.09.2017(57) Provided is a cement composition that has high fluidity (for example, a 0-drop flow value of 200 mm or more) before curing and exhibits high compressive strength...
(22) 12.04.2016(43) 19.10.2017(57) Provided are a cement additive and a cement composition that maintain the favorable fluidity of cement concrete, that reduce autogeneous shrinkage, and that exhibit...
(22) 18.04.2017(43) 26.10.2017(57) A modular assembly (2) is described for coating with refractory material the tip of a burner which introduces solid or liquid fuel into a rotary kiln for producing...
(22) 19.04.2016(43) 26.10.2017(57) The invention relates to Portland cements of the type and category CEM I 52,5 R according to the Spanish Standard UNE-EN 197-1 and which also have a grain-size...
(22) 23.03.2017(43) 05.10.2017(57) The invention relates to a system (100, 200) for producing cement clinker, having at least one rotary kiln (113) for sintering the cement clinker from pre-calcinated...
(22) 05.05.2016(43) 17.12.2017(57) A system and method for applying a construction material is provided. The method may include mixing blast furnace slag material, geopolymer material, alkali-based...
(22) 24.05.2016(43) 29.11.2017(57) Die vorliegende Erfindung betrifft ein Verfahren zur Herstellung eines Klinkerersatzmaterials umfassend die Schritte:Bereitstellen eines Ausgangsmaterials enthaltend...
(22) 27.01.2016(43) 06.12.2017(57) Summary of the corresponding patent WO2016120347 (A1): High alumina cement is produced in a submerged combustion melter, cooled and ground.(71) Knauf Insulation
(22) 29.01.2016(43) 06.12.2017(57) Summary of the corresponding patent WO2016123524 (A1): A method of treating cement kiln fuel includes introducing an additive to a fuel component to form a fuel...
(22) 08.06.2016(43) 13.12.2017(57) The invention provides a process for producing a cement clinker comprising: (i) mixing one or more starting materials providing each at least one or more of CaO,...
(22) 10.06.2016(43) 13.12.2017(57) Device for manufacturing belite calcium sulfoaluminate ternesite clinker, comprising a rotary kiln (1) and a cooler (3), wherein a tempering device (2) is provided...
(22) 11.01.2017(43) 17.11.2017(57) Summary of the corresponding patent WO2014140488 (A1): The invention relates a novel sulfo-aluminous clinker with a low belite content, to a method for producing...
(22) 12.10.2017(43) 17.11.2017(57) Summary of the corresponding patent WO2014140487 (A1): The invention relates to a novel phosphorus-doped sulfo-belitic clinker, to a method for producing said...
(22) 28.08.2017(43) 14.12.2017(57) Methods and apparatus for reducing the content of controlled acidic pollutants in clinker kiln emissions are disclosed. The methods and apparatus include introducing...
(22) 26.04.2017(43) 02.11.2017(57) The present invention relates to a plant (10) for producing cement or processing ores, having a processing apparatus (34) for mechanically and/or thermally...
(22) 03.03.2017(43) 09.11.2017(57) The present invention relates to a method for producing cement, in particular white cement, comprising at least the following steps: thermal treatment of material in...