Mobile cement grinding station
(22) 25.05.2020
(43) 02.12.2021
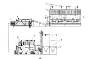
(57) A mobile cement grinding station, comprising: a feeding module, a cement grinding module, a separating and dust removing module, and a storing and bulking module. The feeding module comprises a first shell, and a plurality of unloading hoppers (1), a plurality of quantitive feeding machines (2), and a plurality of dust collecting devices (3) fixed into the first shell, the plurality of quantitive feeding machines (2) and the plurality of dust collecting devices (3) being provided to have one-to-one correspondence to the unloading hoppers (1). The cement grinding module comprises a second shell and a cement ball mill (4) fixed into the second shell. The separating and dust removing module comprises a third shell, and a separator (5), a dust remover (6) and an exhaust blower (7) fixed in the third shell. The storing and bulking module comprises a plurality of steel storerooms (8), discharging ports of the steel storerooms being connected to cement bulking devices (9). Devices and apparatuses in a conventional cement grinding station are packaged into a plurality of functional modules, such that a cement grinding station can be assembled and disassembled conveniently (…).
(71) XIA, Gaoleng, Zhejiang 310007 (CN); PAN, Chaoping, Chongqing 400050 (CN); CHEN, Hui, Chongqing 400799 (CN); ZHU, Hongzhi, Zhejiang 310018 (CN)
